Maison de Ville à Suresnes

HC + Charges

Référence : 

1066
115 m²
2 Salles d’eau
Mont-Valérien

Surface habitable :

115 m²

Surface utile :

132m²
:
23.91 €

Prix au m² utiles :

20.83 €

Description

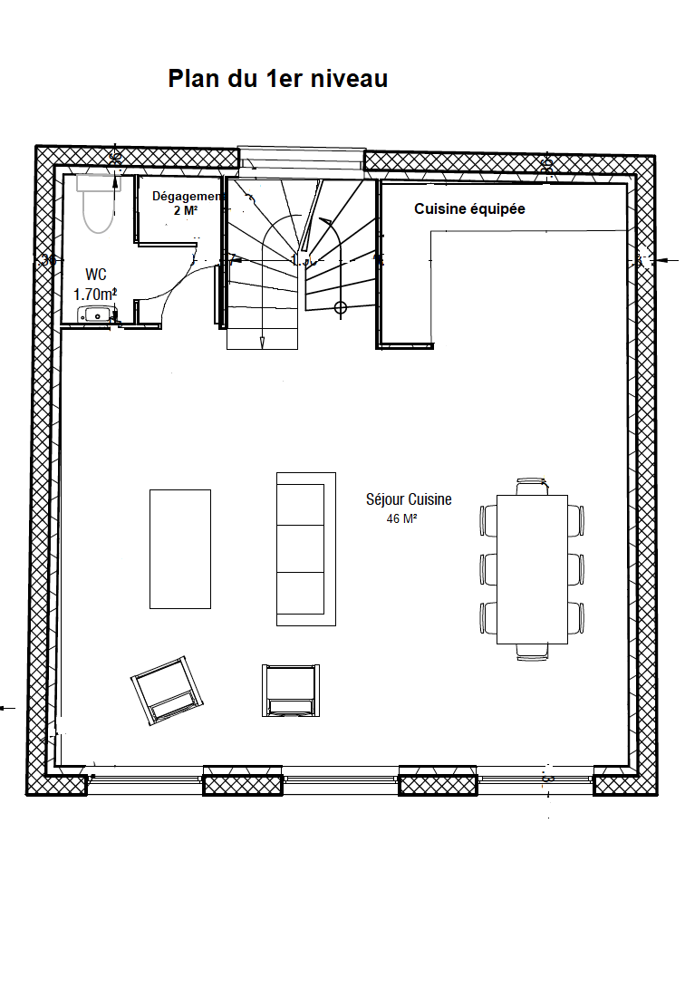
L’agence Empire Immobilier vous présente en exclusivité une maison de Ville Neuve de juin 2023 située dans un des secteurs les plus recherchés de Suresnes : A 100 M du Mont-Valérien, A 900 M de la gare Sncf Via Défense St Lazare / Versailles , à 800 M du Tram T2, du A  500M du groupe scolaire des Raguidelles et de sa piscine, à 600M du centre-ville Edouard Vaillant. Maison de 132M² utiles dont 115 M² habitables, offrant un confort optimum avec son entrée avec rangement, un garage, une buanderie, une pièce à vivre très lumineuse de 46M² avec sa cuisine moderne équipée – 3 Chambres comprenant chacune des rangements intégrés – 2 belles salles d’eau spacieuses et des WC à chaque étage. Maison économe. Chauffe-eau thermo dynamique. Calme et lumineuse.

Caractéristiques

Superficie :

115 m²

Nombre de pièce :

Nombre de chambre :

Meublé :

Non meublé

WC :

Cuisine équipée :

Oui

Année de construction

Etage :

Proximité :

Mont-Valérien

Gardien :

Oui

Loyer & charges

Montant du loyer HC :
Montant des charges appelées :
Loyer charges comprises : 2 650 €
Montant du Dépôt de garantie : 2 650 €
Honoraires de location à la charge du locataire : 1 725 € (dont1 380 € ttc pour honoraires de visites, constitution du dossier et rédaction du bail et dont 345 € ttc pour honoraires d’état des lieux d’entrée.)

Charges d'énergie

Chauffage plancher chauffant au rdc et au 1er étage – Radiateur au 2ièm étage.

Production de l’eau chaude par un ballon thermodynamique.

Diagnostic de performance énergétique
DPE vierge Consommations non exploitables
Non soumis au diagnostic
Emission de Gaz à Effet de Serre
GES vierge Consommations non exploitables
Non soumis au diagnostic
DPE Réalisé suivant la nouvelle méthode applicable depuis le 1er juillet 2021. Coût annuels d’énergie pour une utilisation standard sur 5 usages (chauffage, eau chaude sanitaire, climatisation, éclairage et auxiliaires) estimé entre : 850 € et 1 200 €. Prix moyen des énergies indexés au 1er janvier 2021, abonnement compris.

Etat des risques et pollutions : Les informations sur les risques auxquels ce bien est exposé sont disponibles sur le site Géorisques : www. georisques.gouv.fr

Partagez et imprimez l’annonce

Intéressé(e) par ce bien ?

Vous souhaitez obtenir plus d’informations sur ce bien ou planifier une visite ? L’équipe d’Empire Immobilier se tient à votre disposition. Laissez-nous vos coordonnées : nous vous recontacterons rapidement.